
事業用物件詳細情報一覧に戻る
| 所在地 | 茨城県土浦市真鍋新町16-7 | ||
|---|---|---|---|
| 沿線・駅 | JR常磐線土浦駅 徒歩25分 JR常磐線神立駅 徒歩61分 |
||
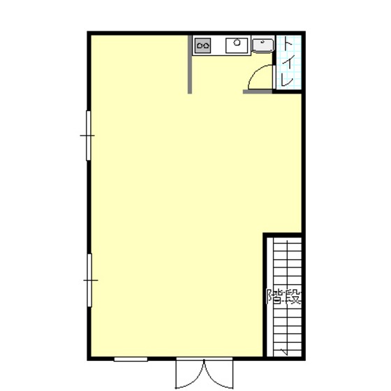
| 賃貸面積 | 70m²(約22坪) | ||
| 所在階 | 2階/2階建 | 築年月 | 1994年09月 |
| 賃料(共益費) | 11万円(-) | 駐車場 | 駐車場なし |
| 敷金(保証金) | 20万円 | 礼金 | 11万円 |
| 仲介手数料 | 0 | ||
事務所仕様にリフォームしました

桂不動産株式会社 土浦支店
| 賃貸面積 | 70m²(約22坪) | ||
|---|---|---|---|
| 所在階 | 2階/2階建 | 築年月 | 1994年09月 |
| 賃料(共益費) | 11万円(-) | 駐車場 | 駐車場なし |
| 敷金(保証金) | 20万円 | 礼金 | 11万円 |
| 仲介手数料 | 0 | ||
| 物件種別 | 店舗・事務所 | ||
|---|---|---|---|
| 物件名/部屋番号 | エム・ワン・II 201号室 | ||
| 所在地 | 茨城県土浦市真鍋新町16-7 | ||
| 小学校区 | 土浦市立真鍋小学校(1,300m) | 中学校区 | 土浦市立土浦第二中学校(700m) |
| 構造 | 鉄骨造 | 所在階/階数 | 2階/2階建 |
|---|---|---|---|
| 築年月 | 1994年09月(築31年6ヶ月) | 総戸数 | 4戸 |
| 賃貸面積 | 70m²(約22坪) | 主要採光面 | 北西 |
| 駐車場 | 駐車場なし | ||
| 設備 | |||
|---|---|---|---|
| こだわり条件 | |||
| 現況 | 空室 | 取引態様 | 仲介 |
| 契約形態 | 普通借家 | 引渡時期 | 即契約開始可能 |
| 契約期間 | 3年 | ||
| 更新費用 |
更新料:50,000円 更新事務手数料:55,000円 |
||
| 連帯保証人 | 保証会社加入が必須となります。物件によっては連帯保証人が必要となります。 | ||
| 店舗総合 保険料等 |
要 | ||
| 交通 | JR常磐線土浦駅 徒歩25分 JR常磐線神立駅 徒歩61分 |
|---|---|
| セールスポイント | 事務所仕様にリフォームしました |
| 備考 | 保証料:初回 賃料総額の120%、以降賃料総額10%/年、口座振替手数料:440円(税込) |
| 情報登録日 | 2026年04月06日 |
| 有効期限 | 2026年04月20日 ※次回更新日は前回更新日より14日以内 |
| 取扱店舗 |
会社名:桂不動産株式会社 土浦支店 TEL:029-886-3330 受付時間:9:30 ~ 18:00 定休日:毎週水曜日及びゴールデンウィーク、お盆、年末年始 住所:〒300-0051 茨城県土浦市真鍋2丁目2-23 |
||
|---|---|---|---|
お電話でのお問い合わせはこちら
029-886-3330
【受付時間】 9:30 ~ 18:00
【定休日】毎週水曜日及びゴールデンウィーク、お盆、年末年始
※お電話でお問い合わせの際はお手数ではございますが、「ホームページを見た」とお伝えください。
【物件コード番号 i-SP:064108】
203 エム・ワン・II 201号室