
事業用物件詳細情報一覧に戻る
| 所在地 | 千葉県柏市柏2丁目9-15 | ||
|---|---|---|---|
| 沿線・駅 | JR常磐線柏駅 徒歩4分 JR常磐線北柏駅 東武バス柏駅西口 バス6分 停歩7分 つくばエクスプレス柏の葉キャンパス駅 東武バス柏駅西口 バス23分 停歩7分 |
||
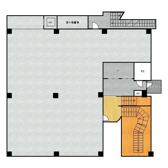
| 賃貸面積 | 309.18m²(約94坪) | ||
| 所在階 | 2階/6階建 | 築年月 | 2003年06月 |
| 賃料(共益費) | 143万円(6.6万円) | 駐車場 | 駐車場なし |
| 敷金(保証金) | 780万円 | 礼金 | 143万円 |
| 仲介手数料 | 143万円(税込) | ||
視認性良好・居ぬき引渡し相談可能です!

柏支店
| 賃貸面積 | 309.18m²(約94坪) | ||
|---|---|---|---|
| 所在階 | 2階/6階建 | 築年月 | 2003年06月 |
| 賃料(共益費) | 143万円(6.6万円) | 駐車場 | 駐車場なし |
| 敷金(保証金) | 780万円 | 礼金 | 143万円 |
| 仲介手数料 | 143万円(税込) | ||
| 物件種別 | 店舗 | ||
|---|---|---|---|
| 物件名/部屋番号 | リンクスビル 201号室 | ||
| 所在地 | 千葉県柏市柏2丁目9-15 | ||
| 構造 | RC | 所在階/階数 | 2階/6階建 |
|---|---|---|---|
| 築年月 | 2003年06月(築22年10ヶ月) | 総戸数 | 6戸 |
| 賃貸面積 | 309.18m²(約94坪) | 主要採光面 | |
| 駐車場 | 駐車場なし | ||
| 設備 | 電気,都市ガス,上水(公営),下水(公営),バイク置場 | ||
|---|---|---|---|
| こだわり条件 | |||
| 現況 | 空室 | 取引態様 | 仲介 |
| 契約形態 | 普通借家 | 引渡時期 | 即契約開始可能 |
| 契約期間 | 3年 | ||
| 更新費用 |
更新料:650,000円 更新事務手数料:715,000円 |
||
| 連帯保証人 | 保証会社加入が必須となります。物件によっては連帯保証人が必要となります。 | ||
| 店舗総合 保険料等 |
要 | ||
| 交通 | JR常磐線柏駅 徒歩4分 JR常磐線北柏駅 東武バス柏駅西口 バス6分 停歩7分 つくばエクスプレス柏の葉キャンパス駅 東武バス柏駅西口 バス23分 停歩7分 |
|---|---|
| 周辺環境 | コンビニ:74m |
| セールスポイント | 視認性良好・居ぬき引渡し相談可能です! |
| 備考 | バイク置場22,000円(税込)スケルトン貸しとする。建物メンテナンス有。電気(動力)・キュービクル有。水道料金:町内会費は入居者負担。 |
| 情報登録日 | 2026年02月27日 |
| 有効期限 | 2026年03月13日 ※次回更新日は前回更新日より14日以内 |
| 取扱店舗 |
会社名:柏支店 TEL:04-7138-6510 受付時間:9:30 ~ 18:00 定休日:水曜日 住所:千葉県柏市末広町4-1 神崎ビル4階 |
||
|---|---|---|---|
お電話でのお問い合わせはこちら
04-7138-6510
【受付時間】 9:30 ~ 18:00
【定休日】水曜日
※お電話でお問い合わせの際はお手数ではございますが、「ホームページを見た」とお伝えください。
【物件コード番号 i-SP:240274】
217 リンクスビル 201号室