
事業用物件詳細情報一覧に戻る
| 所在地 | 茨城県水戸市常磐町2丁目3-37 | ||
|---|---|---|---|
| 沿線・駅 | JR常磐線水戸駅 茨城交通雷神前 バス10分 停歩3分 JR水郡線常陸青柳駅 茨城交通雷神前 バス12分 停歩3分 JR常磐線赤塚駅 茨城交通大工町 バス19分 停歩5分 |
||
| 賃貸面積 | 1215.38m²(約368坪) | ||
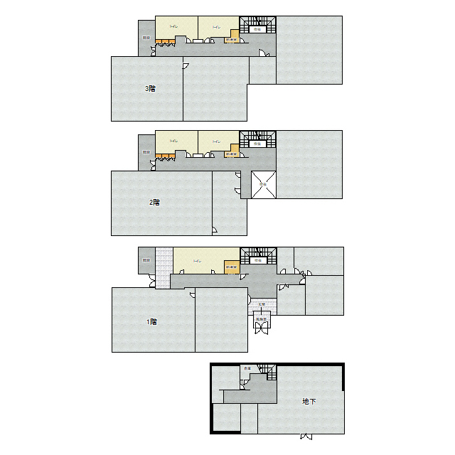
| 所在階 | 1階/3階建/地下1階 | 築年月 | 1998年02月 |
| 賃料(共益費) | 77万円(-) | 駐車場 | 敷地内有 / 5台 / 無料 |
| 敷金(保証金) | 350万円 | 礼金 | 154万円 |
| 仲介手数料 | 77万円(税込) | ||
一棟貸し 3階建(地下一階)の目床面積1,215平米

赤塚支店
| 賃貸面積 | 1215.38m²(約368坪) | ||
|---|---|---|---|
| 所在階 | 1階/3階建/地下1階 | 築年月 | 1998年02月 |
| 賃料(共益費) | 77万円(-) | 駐車場 | 敷地内有 / 5台 / 無料 |
| 敷金(保証金) | 350万円 | 礼金 | 154万円 |
| 仲介手数料 | 77万円(税込) | ||
| 物件種別 | 事務所 | ||
|---|---|---|---|
| 物件名/部屋番号 | 常磐町2丁目貸ビル | ||
| 所在地 | 茨城県水戸市常磐町2丁目3-37 | ||
| 構造 | SRC | 所在階/階数 | 1階/3階建/地下1階 |
|---|---|---|---|
| 築年月 | 1998年02月(築28年2ヶ月) | 総戸数 | 1戸 |
| 賃貸面積 | 1215.38m²(約368坪) | 主要採光面 | |
| 駐車場 | 敷地内有 / 5台 / 無料 | ||
| 設備 | 電気,都市ガス,上水(公営),下水(公営) | ||
|---|---|---|---|
| こだわり条件 | |||
| 現況 | 空室 | 取引態様 | 仲介 |
| 契約形態 | 普通借家 | 引渡時期 | 即契約開始可能 |
| 契約期間 | 5年 | ||
| 更新費用 | 別途お問合せください。 | ||
| 連帯保証人 | 保証会社加入が必須となります。物件によっては連帯保証人が必要となります。 | ||
| 店舗総合 保険料等 |
要 | ||
| 交通 | JR常磐線水戸駅 茨城交通雷神前 バス10分 停歩3分 JR水郡線常陸青柳駅 茨城交通雷神前 バス12分 停歩3分 JR常磐線赤塚駅 茨城交通大工町 バス19分 停歩5分 |
|---|---|
| 周辺環境 | コンビニ:190m |
| セールスポイント | 一棟貸し 3階建(地下一階)の目床面積1,215平米 |
| 備考 | 更新料:新賃料の0.55ヶ月(税込) |
| 情報登録日 | 2025年10月03日 |
| 有効期限 | 2025年10月17日 ※次回更新日は前回更新日より14日以内 |
| 取扱店舗 |
会社名:赤塚支店 TEL:029-291-8860 受付時間:9:30~18:00 定休日:毎週水曜日及びゴールデンウイーク、お盆、年末年始 住所:茨城県水戸市見和2丁目546-1 |
||
|---|---|---|---|
お電話でのお問い合わせはこちら
029-291-8860
【受付時間】 9:30~18:00
【定休日】毎週水曜日及びゴールデンウイーク、お盆、年末年始
※お電話でお問い合わせの際はお手数ではございますが、「ホームページを見た」とお伝えください。
【物件コード番号 i-SP:240292】
201 常磐町2丁目貸ビル