
事業用物件詳細情報一覧に戻る
| 所在地 | 茨城県牛久市中央5丁目20-11 | ||
|---|---|---|---|
| 沿線・駅 | JR常磐線牛久駅 徒歩1分 | ||
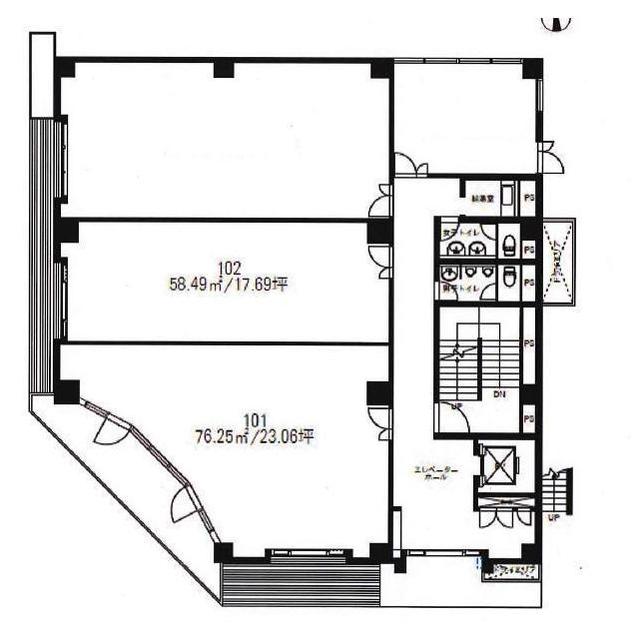
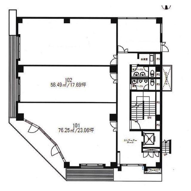
| 賃貸面積 | 58.49m²(約18坪) | ||
| 所在階 | 1階/6階建 | 築年月 | 1989年12月 |
| 賃料(共益費) | 16.5401万円(-) | 駐車場 | 駐車場なし |
| 敷金(保証金) | 45.1095万円 | 礼金 | - |
| 仲介手数料 | 16.5401万円(税込) | ||
牛久駅東口ロータリーに隣接♪徒歩1分

桂不動産株式会社 牛久支店
| 賃貸面積 | 58.49m²(約18坪) | ||
|---|---|---|---|
| 所在階 | 1階/6階建 | 築年月 | 1989年12月 |
| 賃料(共益費) | 16.5401万円(-) | 駐車場 | 駐車場なし |
| 敷金(保証金) | 45.1095万円 | 礼金 | - |
| 仲介手数料 | 16.5401万円(税込) | ||
| 物件種別 | 店舗・事務所 | ||
|---|---|---|---|
| 物件名/部屋番号 | 牛久駅前ビル 102号室 | ||
| 所在地 | 茨城県牛久市中央5丁目20-11 | ||
| 構造 | SRC | 所在階/階数 | 1階/6階建 |
|---|---|---|---|
| 築年月 | 1989年12月(築36年4ヶ月) | 総戸数 | 12戸 |
| 賃貸面積 | 58.49m²(約18坪) | 主要採光面 | |
| 駐車場 | 駐車場なし | ||
| 設備 | 電気,上水(公営),下水(公営),エレベータ,共同トイレ,電話設置可 | ||
|---|---|---|---|
| こだわり条件 | |||
| 現況 | 空室 | 取引態様 | 仲介 |
| 契約形態 | 普通借家 | 引渡時期 | 要確認 |
| 契約期間 | 2年 | ||
| 更新費用 | 別途お問合せください。 | ||
| 連帯保証人 | 保証会社加入が必須となります。物件によっては連帯保証人が必要となります。 | ||
| 店舗総合 保険料等 |
要 | ||
| 交通 | JR常磐線牛久駅 徒歩1分 |
|---|---|
| セールスポイント | 牛久駅東口ロータリーに隣接♪徒歩1分 |
| 情報登録日 | 2026年02月03日 |
| 有効期限 | 2026年02月17日 ※次回更新日は前回更新日より14日以内 |
| 取扱店舗 |
会社名:桂不動産株式会社 牛久支店 TEL:029-830-7510 受付時間:9:30 ~ 18:00 定休日:毎週水曜日及びゴールデンウィーク、お盆、年末年始 住所:〒300-1233 茨城県牛久市栄町5丁目51 |
||
|---|---|---|---|
お電話でのお問い合わせはこちら
029-830-7510
【受付時間】 9:30 ~ 18:00
【定休日】毎週水曜日及びゴールデンウィーク、お盆、年末年始
※お電話でお問い合わせの際はお手数ではございますが、「ホームページを見た」とお伝えください。
【物件コード番号 i-SP:092067】
219 牛久駅前ビル 102号室
賃料:38.5万円
面積
342.47m²
賃料:22万円
面積
68.35m²
賃料:21.5611万円
面積
76.25m²
賃料:6.7万円
間取り
1LDK
56.56m²
賃料:15.51万円
面積
77.69m²
賃料:7.535万円
面積
45.54m²
賃料:5.83万円
面積
35.1m²
賃料:19.3875万円
面積
116.54m²
賃料:7.7万円
面積
40m²
賃料:8.8万円
面積
33.06m²
賃料:66万円
面積
211.15m²
賃料:11万円
面積
115.1m²
賃料:38.5万円
面積
273.1m²
賃料:5万円
間取り
1K
33.18m²
賃料:4.7万円
間取り
1K
33.18m²