
事業用物件詳細情報一覧に戻る
| 所在地 | 茨城県土浦市荒川沖182-2 | ||
|---|---|---|---|
| 沿線・駅 | JR常磐線土浦駅 徒歩10分 JR常磐線ひたち野うしく駅 徒歩30分 JR常磐線土浦駅 徒歩97分 |
||
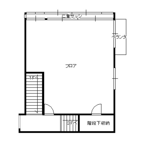
| 賃貸面積 | 52.17m²(約16坪) | ||
| 所在階 | 2階/3階建 | 築年月 | 1978年02月 |
| 賃料(共益費) | 6.05万円(-) | 駐車場 | 駐車場なし |
| 敷金(保証金) | 16.5万円 | 礼金 | 6.05万円 |
| 仲介手数料 | 6.05万円(税込) | ||
| 賃貸面積 | 52.17m²(約16坪) | ||
|---|---|---|---|
| 所在階 | 2階/3階建 | 築年月 | 1978年02月 |
| 賃料(共益費) | 6.05万円(-) | 駐車場 | 駐車場なし |
| 敷金(保証金) | 16.5万円 | 礼金 | 6.05万円 |
| 仲介手数料 | 6.05万円(税込) | ||
| 物件種別 | 店舗・事務所 | ||
|---|---|---|---|
| 物件名/部屋番号 | 泉ビル 201号室 | ||
| 所在地 | 茨城県土浦市荒川沖182-2 | ||
| 構造 | 鉄骨造 | 所在階/階数 | 2階/3階建 |
|---|---|---|---|
| 築年月 | 1978年02月(築48年2ヶ月) | 総戸数 | 3戸 |
| 賃貸面積 | 52.17m²(約16坪) | 主要採光面 | 南東 |
| 駐車場 | 駐車場なし | ||
| 設備 | 電気,上水(公営),下水(公営),トイレ(水洗),照明器具付,エアコン,フローリング,電話設置可 | ||
|---|---|---|---|
| こだわり条件 | |||
| 現況 | 空室 | 取引態様 | 仲介 |
| 契約形態 | 普通借家 | 引渡時期 | 即契約開始可能 |
| 契約期間 | 3年 | ||
| 更新費用 |
更新料:27,500円 更新事務手数料:30,250円 |
||
| 連帯保証人 | 保証会社加入が必須となります。物件によっては連帯保証人が必要となります。 | ||
| 店舗総合 保険料等 |
要 | ||
| 交通 | JR常磐線土浦駅 徒歩10分 JR常磐線ひたち野うしく駅 徒歩30分 JR常磐線土浦駅 徒歩97分 |
|---|---|
| セールスポイント | |
| 備考 | 保証料:初回 賃料総額の120%、以降賃料総額10%/年、口座振替手数料:440円(税込)。駐車場は近隣月極駐車場をご利用ください。 |
| 情報登録日 | 2026年01月23日 |
| 有効期限 | 2026年02月06日 ※次回更新日は前回更新日より14日以内 |
| 取扱店舗 |
会社名:桂不動産株式会社 荒川沖支店 TEL:029-841-3351 受付時間:9:30 ~ 18:00 定休日:毎週水曜日及びゴールデンウィーク、お盆、年末年始 住所:茨城県土浦市荒川沖5番地46 |
||
|---|---|---|---|
お電話でのお問い合わせはこちら
029-841-3351
【受付時間】 9:30 ~ 18:00
【定休日】毎週水曜日及びゴールデンウィーク、お盆、年末年始
※お電話でお問い合わせの際はお手数ではございますが、「ホームページを見た」とお伝えください。
【物件コード番号 i-SP:004097】
203 泉ビル 201号室
賃料:4.3万円
間取り
2DK
40.92m²
賃料:4.3万円
間取り
1DK
29.19m²
賃料:6.5万円
間取り
1LDK
46.6m²
賃料:8.5万円
面積
559.38m²
賃料:3.3万円
間取り
1K
23.77m²
賃料:3,000円
空き
2台
賃料:7.2万円
間取り
2LDK
55.01m²
賃料:5.35万円
面積
353.71m²
賃料:4.5万円
間取り
2DK
42m²
賃料:5.8万円
間取り
1LDK
48m²
賃料:7.3万円
間取り
2LDK
60.79m²
賃料:22.5万円
面積
2127m²
賃料:3.3万円
間取り
1K
23.77m²
賃料:4,000円
空き
3台
賃料:6.95万円
間取り
2LDK
59.58m²