
賃貸物件詳細情報一覧に戻る
| 所在地 | 茨城県つくば市谷田部2431-2(陣場E13街区19) | ||
|---|---|---|---|
| 沿線・駅 | つくばエクスプレス万博記念公園駅 関東鉄道みずほ団地入口 バス3分 停歩12分 つくばエクスプレスみどりの駅 関東鉄道みずほ団地入口 バス4分 停歩12分 つくばエクスプレス研究学園駅 関東鉄道みずほ団地入口 バス36分 停歩12分 |
||
| 間取り | 1LDK | 専有面積 | 55.2m² |
| 所在階 | 1階/3階建 | 築年月 | 2025年08月 |
| 賃料(共益費) | 10.2万円(6,000円) | 駐車場 | 敷地内有 / 1台 / 4,400円 |
| 敷金(保証金) | - | 礼金 | - |
| 仲介手数料 | 11.22万円(税込) | ||
ダイワハウス施行の新築アパート!

桂不動産株式会社 みどりの支店
| 間取り | 1LDK | 専有面積 | 55.2m² |
|---|---|---|---|
| 所在階 | 1階/3階建 | 築年月 | 2025年08月 |
| 賃料(共益費) | 10.2万円(6,000円) | 駐車場 | 敷地内有 / 1台 / 4,400円 |
| 敷金(保証金) | - | 礼金 | - |
| 仲介手数料 | 11.22万円(税込) | ||
| 物件種別 | アパート | ||
|---|---|---|---|
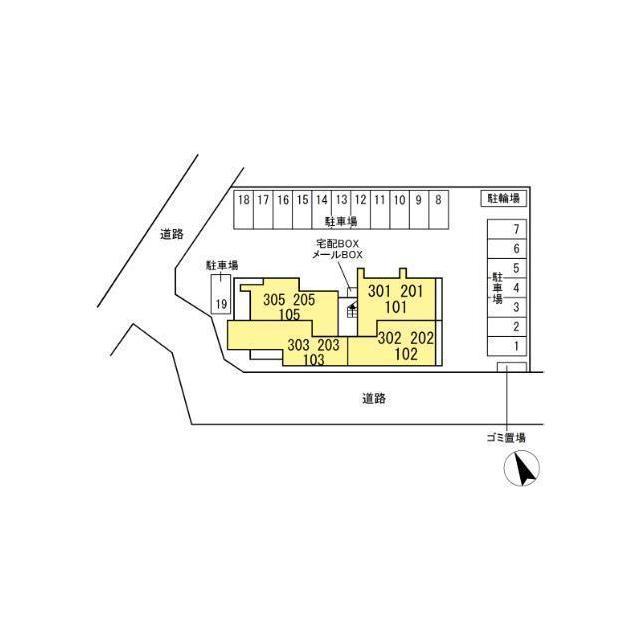
| 物件名/部屋番号 | D’s LIEN A 102号室 | ||
| 所在地 | 茨城県つくば市谷田部2431-2(陣場E13街区19) | ||
| 小学校区 | つくば市立島名小学校(3,800m) | 中学校区 | つくば市立高山中学校(3,800m) |
| 構造 | 軽量鉄骨造 | 所在階/階数 | 1階/3階建 |
|---|---|---|---|
| 築年月 | 2025年08月(築8ヶ月) | 総戸数 | 12戸 |
| 間取り | 1LDK | 専有面積 | 55.2m² |
| 間取り詳細 | LDK14.4,洋室6.3 | ||
| 主要採光面 | 東 | ||
| 駐車場 | 敷地内有 / 1台 / 4,400円 | ||
| 設備 | 電気,都市ガス,上水(公営),下水(公営),宅配ボックス,敷地内ゴミ置場,オートロック,防犯カメラ,BSアンテナ,CSアンテナ,駐輪場,カードキー,シューズボックス,トイレ(水洗),ボイラー,温水洗浄便座,バス・トイレ別,洗面所独立,浴室乾燥機,シャワー,浴室1坪,IHコンロ,システムキッチン,アイランドキッチン,給湯(ガス),追焚き,室内洗濯置場,TVモニタ付インターホン,24時間換気システム,ウォークインクローゼット,床下収納,エアコン2台~,室内物干し,網戸,シャッター雨戸,テラス,フローリング,インターネット無料,冷房,暖房 | ||
|---|---|---|---|
| こだわり条件 | |||
| 現況 | 空室 | 取引態様 | 仲介 |
| 契約形態 | 普通借家 | 引渡時期 | 即入居可能 |
| 契約期間 | 2年 | ||
| 更新費用 | 別途お問合せください。 | ||
| 連帯保証人 | 保証会社加入が必須となります。物件によっては連帯保証人が必要となります。 | ||
| 火災保険 | 要 | ||
| 交通 | つくばエクスプレス万博記念公園駅 関東鉄道みずほ団地入口 バス3分 停歩12分 つくばエクスプレスみどりの駅 関東鉄道みずほ団地入口 バス4分 停歩12分 つくばエクスプレス研究学園駅 関東鉄道みずほ団地入口 バス36分 停歩12分 |
|---|---|
| 周辺環境 | コンビニ:700m,スーパー:2,200m,小学校:3,800m,中学校:3,800m |
| セールスポイント | ダイワハウス施行の新築アパート! |
| 備考 | 更新料1ヶ月・ルームクリーニング71,500円・カードキー16,500円・ICロック電池2,750円。月額賃料等総額3.4%+800円/月。65歳以上の契約は定期借家契約(2年再契約)、機関保証加入必須(初回保証料:月額賃料等合計額×100%,更新20,000円/1年)電気は大和リビングの電気配給サービスを利用。入居後駐車場移動不可。入居可能日、設備が変更する場合があります。駐輪場バイク駐車禁止。 |
| 情報登録日 | 2026年04月06日 |
| 有効期限 | 2026年04月20日 ※次回更新日は前回更新日より14日以内 |
| 取扱店舗 |
会社名:桂不動産株式会社 みどりの支店 TEL:029-896-3000 受付時間:9:30 ~ 18:00 定休日:毎週水曜日及びゴールデンウィーク、お盆、年末年始 住所:〒305-0881 茨城県つくば市みどりの2丁目19-2 |
||
|---|---|---|---|
お電話でのお問い合わせはこちら
029-896-3000
【受付時間】 9:30 ~ 18:00
【定休日】毎週水曜日及びゴールデンウィーク、お盆、年末年始
※お電話でお問い合わせの際はお手数ではございますが、「ホームページを見た」とお伝えください。
【物件コード番号 i-SP:203828】
220 D’s LIEN A 102号室
賃料:11.3万円
間取り
2LDK
59.93m²
賃料:12.1万円
間取り
2LDK
64.54m²
賃料:12.4万円
間取り
2LDK
66.32m²
賃料:11.8万円
間取り
2LDK
61.26m²
賃料:7.6万円
間取り
2LDK
67.23m²
賃料:11.5万円
間取り
2LDK
62.07m²
賃料:9.9万円
間取り
2LDK
74.38m²
賃料:11万円
面積
135.5m²
賃料:10.5万円
間取り
1LDK
56.25m²
賃料:8.5万円
間取り
2LDK
58.62m²
賃料:11.5万円
間取り
2LDK
62.02m²
賃料:9.9万円
間取り
2LDK
53.8m²
賃料:11.7万円
間取り
2LDK
62.02m²
賃料:15.5万円
間取り
3LDK
81.12m²
賃料:11.5万円
間取り
2LDK
62.28m²