
月極駐車場詳細情報一覧に戻る
| 所在地 | 茨城県土浦市木田余4985 | ||
|---|---|---|---|
| 沿線・駅 | JR常磐線土浦駅 徒歩25分 JR常磐線神立駅 徒歩55分 |
||
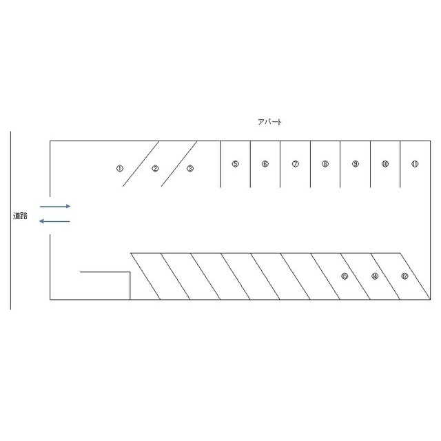
| 空き台数 | 11台 | ||
| 敷金(保証金) | 3,500円 | 礼金 | - |
| 賃料(共益費) | 3,500円(-) | 仲介手数料 | 3,500円(税込) |
| 空き台数 | 11台 | ||
|---|---|---|---|
| 敷金(保証金) | 3,500円 | 礼金 | - |
| 賃料(共益費) | 3,500円(-) | 仲介手数料 | 3,500円(税込) |
| 物件種別 | 月極駐車場 | ||
|---|---|---|---|
| 物件名 | 八幡駐車場 | ||
| 所在地 | 茨城県土浦市木田余4985 | ||
| 空き台数 | 11台 | ||
|---|---|---|---|
| 取引態様 | 仲介 | 引渡時期 | 即契約開始可能 |
|---|---|---|---|
| 契約期間 | 2年 | ||
| 更新費用 | 別途お問合せください。 | ||
| 交通 | JR常磐線土浦駅 徒歩25分 JR常磐線神立駅 徒歩55分 |
|---|---|
| セールスポイント | |
| 情報登録日 | 2026年04月06日 |
| 有効期限 | 2026年04月20日 ※次回更新日は前回更新日より14日以内 |
| 取扱店舗 |
会社名:桂不動産株式会社 土浦支店 TEL:029-886-3330 受付時間:9:30 ~ 18:00 定休日:毎週水曜日及びゴールデンウィーク、お盆、年末年始 住所:〒300-0051 茨城県土浦市真鍋2丁目2-23 |
||
|---|---|---|---|
お電話でのお問い合わせはこちら
029-886-3330
【受付時間】 9:30 ~ 18:00
【定休日】毎週水曜日及びゴールデンウィーク、お盆、年末年始
※お電話でお問い合わせの際はお手数ではございますが、「ホームページを見た」とお伝えください。
【物件コード番号 i-SP:065013】
203 八幡駐車場
賃料:5.8万円
間取り
1LDK
33.12m²
賃料:3,500円
空き
11台
賃料:3,500円
空き
11台
賃料:4.6万円
間取り
2LDK
53.73m²
賃料:6.7万円
間取り
2LDK
56.06m²
賃料:3,500円
空き
11台
賃料:3,500円
空き
11台
賃料:3,500円
空き
11台
賃料:3,500円
空き
11台
賃料:3,500円
空き
11台
賃料:6.9万円
間取り
2LDK
58.5m²
賃料:3,500円
空き
11台
賃料:3,500円
空き
11台
賃料:3,500円
空き
11台
賃料:6.4万円
間取り
2LDK
58.5m²