
賃貸物件詳細情報一覧に戻る
| 所在地 | 茨城県水戸市千波町2362-2 | ||
|---|---|---|---|
| 沿線・駅 | JR常磐線水戸駅 関東鉄道バス緑岡中学校入口 バス13分 停歩3分 JR水郡線水戸駅 関東鉄道バス緑岡中学校入口 バス13分 停歩3分 JR常磐線赤塚駅 徒歩63分 |
||
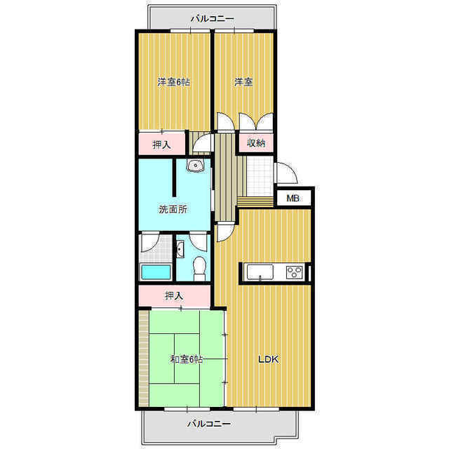
| 間取り | 3LDK | 専有面積 | 79.4m² |
| 所在階 | 3階/4階建 | 築年月 | 1993年03月 |
| 賃料(共益費) | 7.5万円(7,000円) | 駐車場 | 敷地内有 / 1台 / 無料 |
| 敷金(保証金) | 7.5万円 | 礼金 | - |
| 仲介手数料 | 8.25万円(税込) | ||
千波町緑岡学区!3LDKオール電化物件!

水戸支店
| 間取り | 3LDK | 専有面積 | 79.4m² |
|---|---|---|---|
| 所在階 | 3階/4階建 | 築年月 | 1993年03月 |
| 賃料(共益費) | 7.5万円(7,000円) | 駐車場 | 敷地内有 / 1台 / 無料 |
| 敷金(保証金) | 7.5万円 | 礼金 | - |
| 仲介手数料 | 8.25万円(税込) | ||
| 物件種別 | マンション | ||
|---|---|---|---|
| 物件名/部屋番号 | エミナンス ドゥ ファミーユ A 304号室 | ||
| 所在地 | 茨城県水戸市千波町2362-2 | ||
| 小学校区 | 水戸市立緑岡小学校(600m) | 中学校区 | 水戸市立緑岡中学校(230m) |
| 構造 | RC | 所在階/階数 | 3階/4階建 |
|---|---|---|---|
| 築年月 | 1993年03月(築33年) | 総戸数 | 31戸 |
| 間取り | 3LDK | 専有面積 | 79.4m² |
| 間取り詳細 | 和室6,洋室6 | ||
| 主要採光面 | 南 | ||
| 駐車場 | 敷地内有 / 1台 / 無料 | ||
| 設備 | 電気,上水(公営),下水(公営),宅配ボックス,敷地内ゴミ置場,オール電化,駐輪場,シューズボックス,トイレ(水洗),温水洗浄便座,バス・トイレ別,洗面所独立,シャワー,IHコンロ,給湯(電気),室内洗濯置場,TVモニタ付インターホン,クローゼット,トランクルーム,物置,照明器具付,エアコン,網戸,バルコニー,2面バルコニー,フローリング,インターネット無料 | ||
|---|---|---|---|
| こだわり条件 | 日当り良好,閑静な住宅街 | ||
| 現況 | 空室 | 取引態様 | 仲介 |
| 契約形態 | 普通借家 | 引渡時期 | 要確認 |
| 契約期間 | 2年 | ||
| 更新費用 |
更新料:37,500円 更新事務手数料:41,250円 |
||
| 連帯保証人 | 保証会社加入が必須となります。物件によっては連帯保証人が必要となります。 | ||
| 火災保険 | 要 | ||
| 交通 | JR常磐線水戸駅 関東鉄道バス緑岡中学校入口 バス13分 停歩3分 JR水郡線水戸駅 関東鉄道バス緑岡中学校入口 バス13分 停歩3分 JR常磐線赤塚駅 徒歩63分 |
|---|---|
| 周辺環境 | コンビニ:450m,小学校:600m,中学校:230m,スーパー:650m,ドラッグストア:650m |
| セールスポイント | 千波町緑岡学区!3LDKオール電化物件! |
| 備考 | オール電化。駐車場2台目:3,000円/月(税無、隣接敷地外駐車場)水道料金:個別対応。町内会費:個別対応。初回保証料:賃料総額の50%(最低15,000円)以降10,000円/年。口座振替手数料:賃料総額の1%/月(最低300円)緊急サポート24:月額1,320円(税込)。消火剤5,500円(税込)。消臭抗菌11,000円(税込)。虫駆除19,800円(税込)。 |
| 情報登録日 | 2026年03月08日 |
| 有効期限 | 2026年03月22日 ※次回更新日は前回更新日より14日以内 |
| 取扱店舗 |
会社名:水戸支店 TEL:029-353-6200 受付時間:9:30 ~ 18:00 定休日:毎週水曜日及びゴールデンウィーク、お盆、年末年始 住所:茨城県水戸市笠原町1523-3 |
||
|---|---|---|---|
お電話でのお問い合わせはこちら
029-353-6200
【受付時間】 9:30 ~ 18:00
【定休日】毎週水曜日及びゴールデンウィーク、お盆、年末年始
※お電話でお問い合わせの際はお手数ではございますが、「ホームページを見た」とお伝えください。
【物件コード番号 i-SP:201121】
201 エミナンス ドゥ ファミーユ A 304号室
賃料:2.4万円
間取り
1K
22.68m²
賃料:4.9万円
間取り
1LDK
44.5m²
賃料:4万円
間取り
2DK
40.92m²
賃料:5,500円
空き
8台
賃料:4万円
間取り
2DK
40.92m²
賃料:4万円
間取り
1K
31.75m²
賃料:5,500円
空き
8台
賃料:4.9万円
間取り
1LDK
44.5m²
賃料:4万円
間取り
2DK
40.92m²
賃料:4,400円
空き
8台
賃料:4万円
間取り
2DK
40.42m²
賃料:5.5万円
間取り
3LDK
69.3m²
賃料:3.9万円
間取り
2K
29.74m²
賃料:7.5万円
間取り
3LDK
79.4m²
賃料:9万円
間取り
2LDK
52.99m²